
“Mặt bằng Landmark 4 Vinhomes Central Park (Tân Cảng) được chủ đầu tư thiết kế tối ưu nhất. Căn hộ tại đây có giá cả phải chăng và được nhiều khách hàng yêu thích. Các doanh nghiệp cũng rất thích đặt văn phòng tại tòa căn hộ này”
Thông tin căn hộ Landmark 4 – mặt bằng tổng thể tòa L4
The Landmark 4 một mặt giáp Landmark Plus mặt còn lại giáp Landmark 5. Thiết kế các tòa nhà chồng chéo khiến tòa căn hộ dù nằm giữa hai tòa nhưng view vẫn thoáng và vẫn nhận được gió trời mát mẻ
Sơ đồ vị trí Landmark 4Vị trí và Hướng Block căn hộ tại tòa L4:
Block mặt bằng căn hộ tại đây thuộc khuôn viên Phân khu The Landmark của Vinhomes Central Park có các view hướng như sau:
Hướng Tây Bắc: view hướng về thành phố và Landmark Plus; hướng quận Bình Thạnh
Hướng Tây Nam: view hướng về nội khu Landmark plus, bệnh viện Vinmec; hướng về quận 1 và đường Nguyễn Hữu Cảnh
Hướng Đông Bắc: view hướng thành phố và Landmark 5; hướng về sông Sài Gòn và Thủ Đức
Hướng Đông Nam: view nhìn Landmark 5, Landmark 81; hướng về Tp. Thủ Đức
Chi tiết bàn giao mặt bằng Landmark 4 Vinhomes Central Park (Tân Cảng):
– Số tầng: 50 tầng – Hầm: 3 hầm
– 14 căn hộ trên một sàn
– Có 10 thang máy phục vụ cư dân – 2 thang thoát hiểm
– Shophouse, căn duplex thương mại: 8 shophouse 2 mặt tòa nhà
– Tòa căn hộ có sảnh Oto đón khách, mặt bên đường đối diện Landmark Plus
Tiện ích tại Landmark 4 Vinhomes Central Park:
Hồ bơi tràn bờ phục vụ cư dân với hệ thuống tiểu cảnh khép kín và không gian xanh tươi mát
Khu vui chơi vận động ngoài trời cho trẻ nằm ngay mặt sau tòa nhà là tầng khối đế của Landmark 81
Shophouse nhà hàng, spa, dịch vụ 5 sao
View hướng thành phố và công viên Cetral Park – tầm nhìn xa đến thành phố Thủ Đức
Một số hình ảnh về tiện ích:
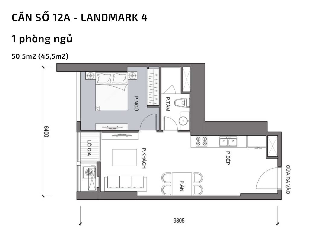
Mặt bằng chi tiết căn hộ Landmark 4:
Được nhiều khách hàng đánh giá cao về thiết kế layout căn hộ thông minh, thoáng, tối ưu và hợp lý nhất khu. Dưới đây là layout chi tiết từng căn hộ:
Mặt bằng căn hộ 1 phòng ngủ:




Mặt bằng căn hộ 2 phòng ngủ:






Mặt bằng căn hộ 3 phòng ngủ:




Layout Landmark 4 Vinhomes Central Park cũng giống như Landmark 5, một số căn hộ được chủ đầu tư trang bị nội thất đầy đủ từ A đến Z theo phong cách hiện đại. Một mặt giám Landmark 5 và một mặt nhìn về Landmark Plus rất thoáng. Đây là tòa căn họ dễ tìm vì nằm ngay cửa vào của khu Vinhomes Central Park (đường vào từ Nguyễn Hữu Cảnh).








