“Mặt bằng Landmark 81 tòa tháp cao nhất Việt Nam tọa lạc tại siêu dự án Vinhomes Central Park (Tân Cảng) với thiết kế bó tre đặc biệt mặt bằng tại đây không chỉ phân bổ cho các căn hộ 1-2-3-4 phòng ngủ mà còn có cả Sky Villas. Landmark 81 là tòa căn hộ phức hợp nhiều chức năng từ thương mại, đến căn hộ ở, khách sãn, vui chơi giải trí, shopping, …”
Thông tin – Mặt bằng Landmark 81 – Layout chi tiết căn hộ
The Landmark 81 là tòa tháp được chia thành 3 phần. Phần khối đế từ hầm B1 đến tầng 6 là khu Trung tâm thương mại với nhiều hoạt động vui chơi giải trí, mua sắm và nhiều nhà hàng. Từ tầng 6 đến tầng 42 là khu căn hộ cao cấp với các căn hộ từ 1 đến 4 phòng ngủ và các căn Sky Villas. Từ tầng 43 là khu khách sạn Vinpearl.

Sơ đồ vị trí tòa Landmark 81
Vị trí và Hướng Block căn hộ tại tòa L81:
Tòa Landmark 81 là tòa căn hộ cao nhất Việt Nam tọa lạc tại Vinhomes Central Park có các view hướng như sau:
- Hướng Tây Bắc: view hướng về nội khu và Landmark 4,5,6; hướng quận Bình Thạnh
- Hướng Tây Nam: view hướng nội khu tòa Landmark 2,3; hướng về quận 1 và đường Nguyễn Hữu Cảnh
- Hướng Đông Bắc: view hướng cầu Sài Gòn và khu biệt thự; hướng về sông Sài Gòn và Thủ Đức
- Hướng Đông Nam: view nhìn trực diện công viên Central Park, Landmark 1 và sông Sài Gòn; hướng về Tp. Thủ Đức
Chi tiết bàn giao mặt bằng Landmark 81:
– Số tầng: 81 tầng – Hầm: 3 hầm
– Căn hộ trên mỗi sàn sẽ thay đổi tùy vào từng tầng có Sky Villas hay không có Sky Villas
– Có 20 thang máy phục vụ cư dân
– Khu thương mại, giải trí, nhà hàng thuộc tầng khối đế từ hầm B1 đến tầng 6 bao hồm cả mặt ngoài và mặt trong khu thương mại
– Tòa Landmark 81 có 4 sảnh otô. Trong đó 2 sảnh dành cho khách hàng đến khu TTTM, 1 sảnh dành cho khách sảnh Vinpearl và 1 sành otô dành cho cư dân căn hộ tại đây.
– Các căn hộ tại đây ngoài việc thừa hưởng toàn bộ tiện ích và đặc quyền của cư dân Vinhomes thì còn sở hữu nhưng tiện ích 5 sao vượt trội bên trong tòa căn hộ L81
Tiện ích tại Landmark 81 :
Hồ bơi tràn bờ phục vụ cư dân với hệ thống sảnh hành lang sang trọng với điểm nhấn là những bức tranh giúp bạn cảm nhận được sự ấm cúng và sang trọng ngay cả khi đi trên hành lang của khu căn hộ.
Khu vui chơi cho trẻ em nằm ngay trong tòa nhà và ngoài ra còn có khu vui chơi cho bé ngay khuôn viên khối đế của tòa L81
Shophouse nhà hàng, spa, dịch vụ 5 sao, Trung tâm thương mại Vincom
View tại các căn hộ L81 đa số là nhìn về hướng công viên Central Park, khu biệt thự và sông Sài Gòn hướng quận 2
Mặt bằng Landmark 81 – Layout Chi tiết từng căn hộ
Được nhiều khách hàng đánh giá cao về thiết kế layout căn hộ thông minh, thoáng, tối ưu và hợp lý nhất khu. Dưới đây là layout chi tiết từng tầng:
Mặt bằng tầng 6 tòa căn hộ L81:

Mặt bằng tầng 7 – 10 tòa căn hộ L81:

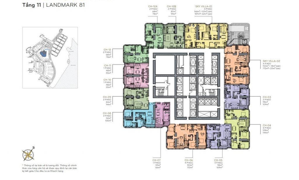
Mặt bằng tầng 11 tòa căn hộ L81:

Mặt bằng tầng 12 – 14 tòa căn hộ L81:

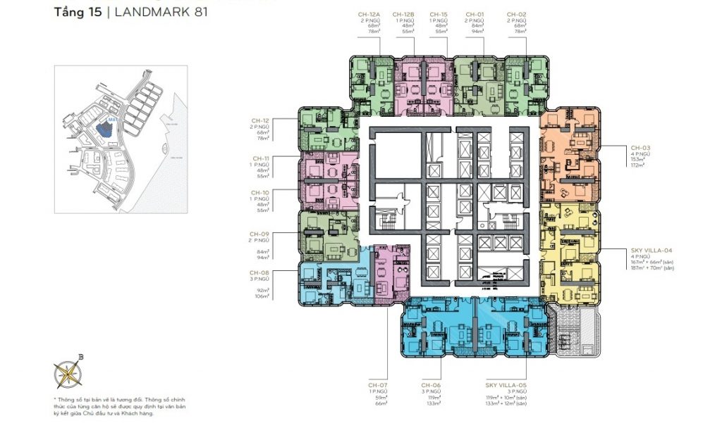
Mặt bằng tầng 15 tòa căn hộ L81:

Mặt bằng tầng 16 – 17 tòa căn hộ L81:

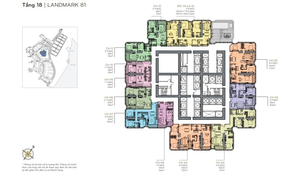
Mặt bằng tầng 18 tòa căn hộ L81:

Mặt bằng tầng 19 – 20 tòa căn hộ L81:

Layout tầng 19 – 20 the Landmark 81
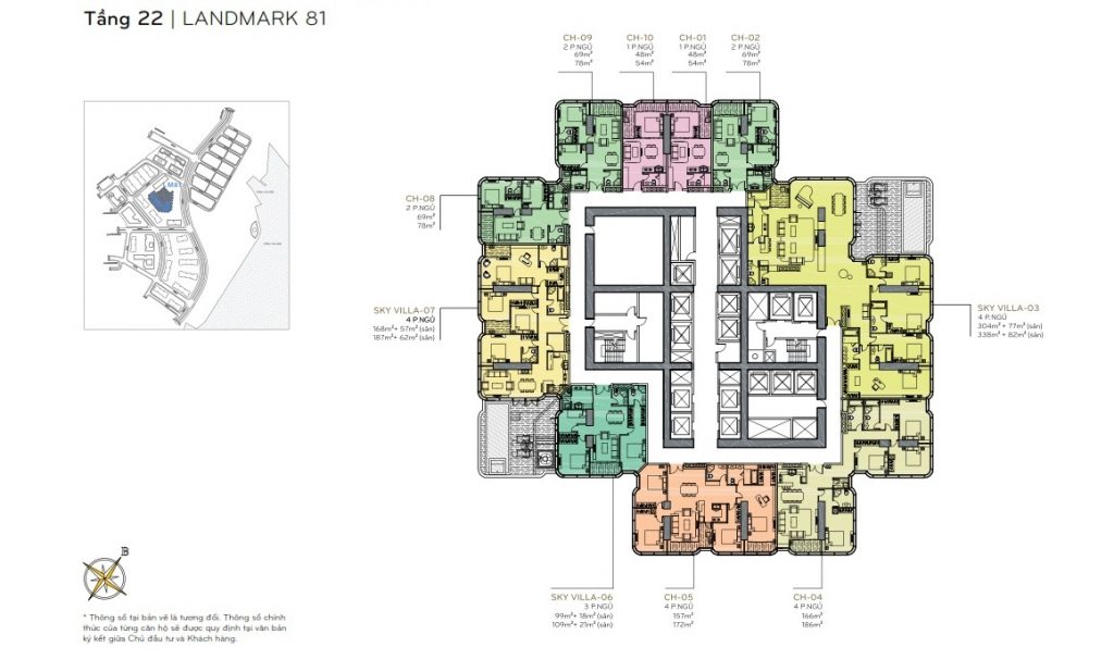
Mặt bằng tầng 22 tòa căn hộ L81:

Mặt bằng tầng 23 – 26 tòa căn hộ L81:

Mặt bằng tầng 27 tòa căn hộ L81:

Mặt bằng tầng 28 – 30 tòa căn hộ L81:

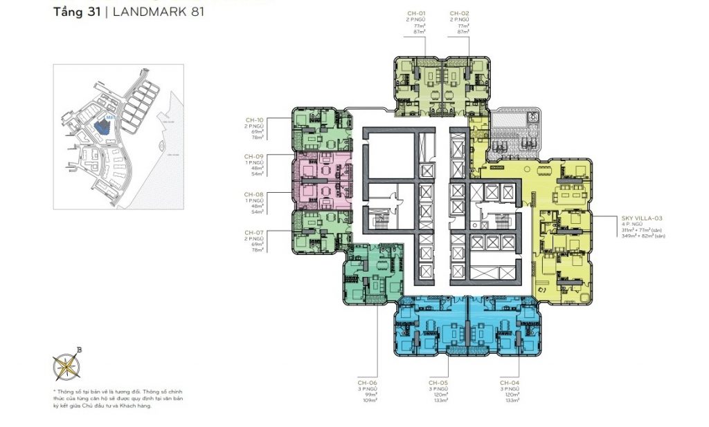
Mặt bằng tầng 31 tòa căn hộ L81:

Mặt bằng tầng 32 – 40 tòa căn hộ L81:









